Bauen in Marktbergel

baugrund in marktbergel

Verfügbare Bauplätze

baugebiet weilerfeld

Änderung Beauungsplan im Baugebiet Weilerfeld.

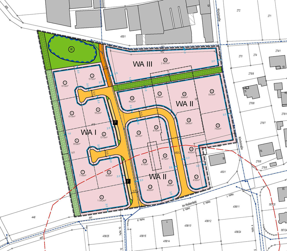
Bauleitplanung des Marktes Marktbergel; 1. Änderung Bebauungsplan Nr. 5 ‚Weilerfeld‘ im vereinfachten Verfahren nach § 13 Baugesetzbuch (BauGB) Der Marktgemeinderat Marktbergel hat am 04.05.2017 in öffentlicher Sitzung beschlossen, den rechtsverbindlichen Bebauungsplan Nr. 5 „Weilerfeld“ im vereinfachten Verfahren gemäß § 13 BauGB zu ändern. Der Änderungsentwurf wurde in der Fassung vom 04.05.2017 gebilligt. Die räumliche Lage des Bebauungsplanes ergibt sich aus folgendem Kartenausschnitt.

Bauleitplanverfahren

baugrund in marktbergel

Laufende Bauleitplanverfahren

newsletter „bauen“

Sie haben Interesse an einem Bauplatz in Marktbergel?

Skip to content